|
QD型16/3.2-50/10噸吊鉤橋式起重機

|
起重量 |
t |
16/3.2 |
20/5 |
|
跨度 |
|
10.5 |
13.5 |
16.5 |
19.5 |
22.5 |
25.5 |
28.5 |
31.5 |
10.5 |
13.5 |
16.5 |
19.5 |
22.5 |
25.5 |
28.5 |
31.5 |
|
最大起升高度 |
主 |
|
16 |
12 |
|
副 |
|
18 |
14 |
|
速度 |
起升 |
主 |
A5 |
|
7.9 |
7.5 |
|
A6 |
|
13 |
12.45 |
|
副 |
|
19.7 |
19.5 |
|
小車運行 |
|
44.6 |
|
大車運行 |
A5 |
|
84 |
87 |
84 |
87 |
|
A6 |
|
112 |
101 |
112 |
101 |
|
電動機 |
起升 |
主 |
A5 |
|
YZR225M-8Z/26 |
|
A6 |
|
YZR250M1-6/37 |
YZR250M1-6/45 |
|
副 |
|
YZR160L-6Z/13 |
YZR180L-6Z/17 |
|
小車運行 |
|
YZR132M2-6/4 |
|
大車運行 |
A5 |
|
YZR160M1-6/2×6.5 |
YZR160M2-6/2×8.5 |
YZR160M1-6/2×6.3 |
YZR160M2-6/2×8.5 |
|
A6 |
|
YZR160M2-6/2×7.5 |
YZR160L-6/2×11 |
YZR160M2-6/2×7.5 |
YZR160L-6/2×11 |
|
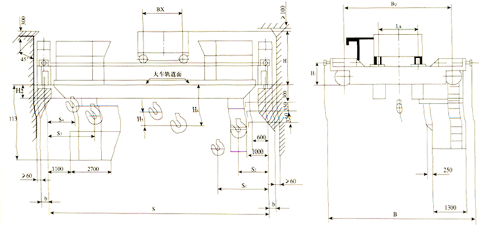
主要尺寸 |
H |
1995 |
2085 |
1996 |
2086 |
|
H1 |
775 |
865 |
775 |
865 |
|
H2 |
80 |
180 |
240 |
388 |
538 |
688 |
838 |
80 |
82 |
182 |
242 |
390 |
540 |
690 |
840 |
|
H3 |
2570 |
2550 |
2620 |
2770 |
2750 |
2700 |
3050 |
2570 |
2574 |
2554 |
2642 |
2772 |
2752 |
2902 |
3052 |
|
H4 |
654 |
652 |
562 |
542 |
452 |
|
H5 |
725 |
378 |
|
B |
A5 |
5200 |
5310 |
6210 |
5200 |
5310 |
6210 |
|
A6 |
5600 |
6200 |
5600 |
6200 |
|
BQ |
A5 |
4000 |
4100 |
5000 |
4000 |
4100 |
5000 |
|
A6 |
4400 |
5000 |
4400 |
5000 |
|
BX |
2400 |
|
b |
230 |
260 |
230 |
260 |
|
LX |
2000 |
|
S1 |
2310 |
2320 |
|
S2 |
1500 |
1450 |
|
S3 |
1850 |
1900 |
|
S4 |
1040 |
1030 |
|
重量 |
小車 |
A5 |
|
6.3 |
6.9 |
|
A6 |
6.59 |
7.28 |
|
總重 |
A5 |
|
19.2 |
21 |
23 |
27 |
30 |
34 |
38 |
41 |
20 |
22 |
24 |
29 |
32 |
37 |
40 |
43 |
|
A6 |
21 |
23 |
25 |
29 |
32 |
36 |
40 |
44 |
22 |
24 |
27 |
31 |
34 |
39 |
43 |
46 |
|
最大輪壓 |
A5 |
|
14.6 |
15.5 |
16.3 |
18.8 |
19.3 |
20.5 |
21.4 |
22.3 |
16.5 |
17.6 |
18.5 |
20.7 |
21.6 |
23 |
23.9 |
24.9 |
|
A6 |
15.5 |
16.4 |
17.3 |
19.4 |
20.3 |
21.4 |
22.3 |
23.2 |
17.7 |
18.8 |
19.9 |
22.1 |
23.3 |
24.3 |
25.5 |
26.5 |
|
薦用鋼軌 |
|
38kg/m QU70 |
|
電源 |
|
三相交流380V 50HZ |
|